
Client
Venture Church
Year
Unbuilt
SF
27,095
Awards
AIA Huron Valley Honor Award
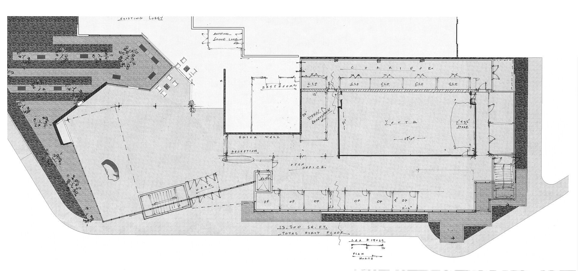
For a church that labels its services as “Experiences” this addition project adds dynamic activity and work spaces to the existing church building. With a 950 seat auditorium set in a pre-engineered barn structure the existing church had left turf space on each side for future one story additions.
This project looks instead at a two story solution to preserve the existing playground. Office and youth functions will be on the first level with a full gymnasium, prep. kitchen and coffee bar on the second level. Program concept included maintaining an open passage between the new entry and the existing building, running between the two new program blocks.
Two landscape areas are incorporated on either side to contrast the large amount of parking needed for the auditorium.
Building envelope concept included the “wrap” and the cantilevered gym mass. The wrap mediates between the transition of the existing building and the new through distinguishing materials and by layering spaces. The wrap continues up around the building to reveal a dynamic climbing rock tower. This reveal also facilitates a horizontal connection between the active street level entry and the climbing feature inside.
The cantilevered gym mass provides acoustic isolation for the gymnasium yet does not continue to ground level, allowing for a planter layer to create a calm buffer zone between the offices and the public sidewalk.













