

Client
Schoolcraft College
Year
2023
SF
15,000
The renovations at Schoolcraft College provide new opportunities for public and business engagement with flexible, state-of-the-art classrooms for students.
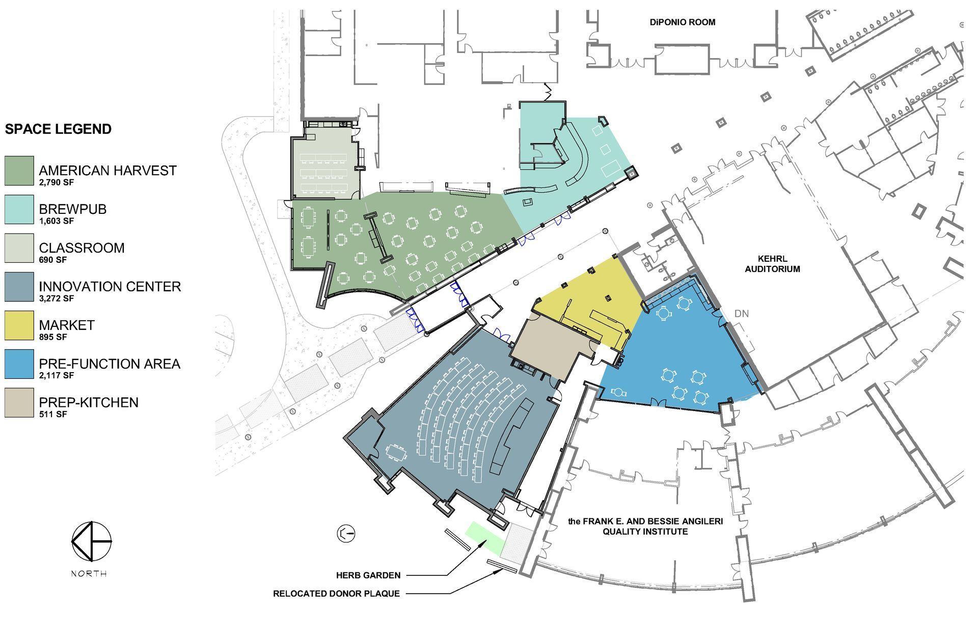
The almost 15,000 SF addition and renovation included a restaurant, brew pub, classroom space, 70-seat demonstration kitchen, market for student- and faculty-made products, prep kitchen, and re-envisioned auditorium lobby.
The existing facilities radial layout required careful design and planning to successfully integrate the new program and maintain the legibility and function of one of the school’s main entrances and event space.
The architects used the radial layout to “pivot” program elements around the existing courtyard.
Working closely with the chefs, the team focused on creating functional transitions between new and existing spaces to ensure the entire facility operated smoothly.























